funkcjonalny rozkład pomieszczeń

Dom (Segment środkowy) na sprzedaż
1 299 000,00 PLN , Pow. 175 m2
Drukuj ofertę
Drukuj ofertę
Typ nieruchomości:
Dom
Powierzchnia:
175 m2
Typ transakcji:
sprzedaż
Liczba pokoi:
5
Lokalizacja:
Warszawa Wesoła Stara Miłosna
Rok budowy:
2024
Piętro:
0 na 2
Numer oferty:
EC528214
Powierzchnia działki:
40 m2
Cena za m2:
7 422,86 PLN

*RYNEK PIERWOTNY,  BRAK PROWIZJI, BRAK PODATKU PCC

Pragniesz zamieszkać w spokojnej okolicy, z dala od miejskiego zgiełku, a jednocześnie mieć łatwy dostęp do Warszawy? Ta oferta jest właśnie dla Ciebie!

Bezczynszowe, trzypoziomowe mieszkanie o powierzchni 175m2, położone w malowniczej dzielnicy Wesoła, w części Stara Miłosna, zapewni Ci idealną równowagę między bliskością natury a dogodnym dojazdem do centrum miasta. Odległość od samego serca Warszawy wynosi zaledwie 16,5 km w linii prostej, co sprawia, że będziesz mógł cieszyć się urokami spokojnego otoczenia, nie rezygnując z wygody i dostępności.

Funkcjonalny rozkład, przestronne pomieszczenia.

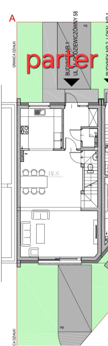
PARTER
- widna kuchnia z jadalnią otwarta na salon i wyjściem na taras
-toaleta

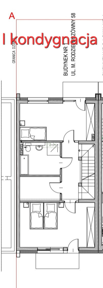
PIĘTRO
- dwie sypialnie, każda z nich z wyjściem na balkon
- łazienka
- garderoba
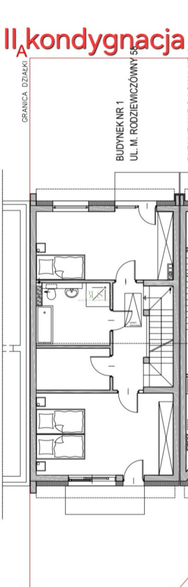
PODDASZE
- dwie sypialnie każda z nich  wyjściem na balkon
- łazienka
- garderoba


Jasne i przestronne pomieszczenia pozwolą Ci na swobodną aranżację i stworzenie wymarzonego wnętrza. Dodatkowo, do mieszkania przynależą dwa miejsca postojowe.

Kameralny budynek trzylokalowy gwarantuje prywatność i spokój. Połączenie z Warszawą jest doskonałe - zarówno trasa S17 jak i autostrada A2 znajdują się w bliskiej odległości. Dodatkowo, w okolicy znajdują się kompleksy leśne, które zachęcają do spacerów i aktywnego wypoczynku na łonie natury.

Ta oferta jest idealna zarówno dla singla, pary, jak i jako inwestycja do dalszego wynajmu. W pobliżu znajdują się liczne sklepy, restauracje, kawiarnie oraz supermarkety, co sprawia, że codzienne zakupy czy spotkania ze znajomymi będą niezwykle wygodne i dostępne.

Dodatkowym atutem tej nieruchomości jest kameralna uliczka oraz niska zabudowa, która tworzy przyjazną atmosferę pełną zieleni.

Nie przegap tej okazji! To mieszkanie spełni Twoje marzenia o spokojnym i jednocześnie dobrze skomunikowanym miejscu zamieszkania. Skontaktuj się z nami już dziś!
Polecam, zapraszam na prezentację, warto obejrzeć.


Nieprawidłowy adres E-mail